Trilocale in vendita

Milano, Via Valazze - Città Studi Teodosio
€ 495.000
3 locali 3 locali
80 Mq 80 Mq
1 bagno 1 bagno

Trilocale in vendita

Milano, Via Valazze - Città Studi Teodosio

Descrizione annuncio

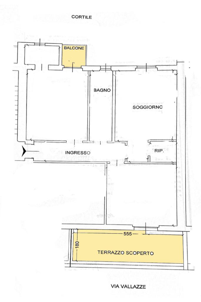
Nella servitissima zona Città studi Teodosio, In Ottimo contesto anni 30, proponiamo ottimo tre locali con terrazzo posto al piano ultimo cosi composto: ingresso su corridoio, ampia zona tinello-soggiorno con angolo cottura, due ampie camere matrimoniali, bagno finestrato, balcone e terrazzo. Completano la proprietà ampio vano cantina al piano interrato.

L'immobile, da ristrutturare, presenta parte del capitolato dell'epoca anni 30 da recuperare attraverso una ristruturazione.

L'appartamento gode di ottima luminosità grazie alla doppia esposizione Sud est/ nord ovest oltre che di una vista panoramica sul quartiere.

Ideale per giovani famiglie o per coppie alla ricerca della loro prima casa

L'immobile è in collaborazione con l'agenzia Obbiettivo Casa di via Pordenone 13

Mostra tutto

Nelle vicinanze

Trasporto pubblico Trasporto pubblico
Lambrate FS
Lambrate FS
350 m
Piola
Piola
570 m
stazione di Milano Lambrate
stazione di Milano Lambrate
530 m
stazione di Cimiano
stazione di Cimiano
1,9 Km
Stazione Lambrate M2
Stazione Lambrate M2
440 m
Ricariche auto elettriche Ricariche auto elettriche
U2 Supermercato Milano Vallazze | EnelX
200 m
A2A Pacini
380 m
A2A PoliMi
720 m
A2A Isola Digitale PoliMi
740 m
PoliMi - Dipartimento di Elettronica
750 m
Scuole Scuole
Scuola Monforte
450 m
Politecnico di Milano, Campus Mancinelli
610 m
Politecnico di Milano, Sede Milano Leonardo
690 m
IIS Santa Caterina da Siena
710 m
Scuola elementare steineriana
710 m
Farmacia Farmacia
Porpora
150 m
Lloyds Farmacia
250 m
Farmacia Bramante
330 m
Farmacia Lambrate
380 m
Farmacia Caldarini Roda Dr. Alberto
460 m
Ospedali Ospedali
Istituto Clinico Città Studi
380 m
Istituto Neurologico Carlo Besta
840 m
Istituto Nazionale dei Tumori
1,1 Km
San Raffaele - Turro
1,6 Km
Poliambulatorio di via Don Orione
1,9 Km
Supermercati Supermercati
Unes
50 m
Penny
130 m
U2 Supermercato
190 m
Pam
470 m
AffamatiUSA
480 m
Negozi Negozi
Negozi
120 m
Carrefour Express
180 m
Danelli
230 m
Pane & Bontà
250 m
Alimentari Pacini
290 m
Bar Bar
Family Ties
50 m
Twain
70 m
Bar Tavola Calda Lilly
90 m
Albatros
110 m
Trendy
120 m
Ristoranti Ristoranti
Ciccio Pizza
70 m
Pizza House
160 m
Mondipizza
200 m
Le Fontanelle
200 m
Mediterranea
210 m
Mostra tutto

Caratteristiche

Rif.:
61183653
Piano:
5 di 5 con ascensore (ultimo Piano)
Box:
1
Balconi:
1
Terrazzi:
1
Camere da letto:
2
Mostra tutto
Prezzo Prezzo
€ 495.000
Prezzo box Prezzo box
€ 50.000
Rata mutuo Rata mutuo
€ 2.297 / mese
Spese annue Spese annue
€ 2.500
Proponi il tuo prezzoProponi il tuo prezzo

Classe Energetica

G
G
G
G
G
G
G
G
G
EP globale non rinnovabile:
128.50 kW h/m² anno
Anno di costruzione:
1930
Riscaldamento:
Centralizzato
Tipo impianto:
A radiatori
Tipo alimentazione:
Metano

Ti interessa visionare l'immobile?

Fissa un appuntamento  Fissa un appuntamento

Richiedi informazioni

Clicca su Leggi per aprire l'informativa
* Questi campi sono obbligatori

Calcola il tuo mutuo

Semplice e senza impegno
Anticipo

( % )
Mutuo

( % )

pochi semplici passi

inserisci i tuoi dati
Questionario completato
Grazie per aver richiesto un appuntamento senza impegno con un nostro Consulente del Credito e Assicurativo.

Hai inserito correttamente tutti i dati necessari e a breve riceverai una e-mail con un link da convalidare per inviare i tuoi dati.
Affiliato
M.p Case Srl
Via Desiderio 28 angolo via Vallazze, 20131 Milano (MI)

Il nostro staff


  • Claudio Mandaglio
    Affiliato

  • Maurizio Palumbo
    Affiliato
Via Desiderio 28 angolo via Vallazze, 20131 Milano (MI)
Zona: Lambrate
Mostra su mappa
Affiliato
M.p Case Srl
Via Desiderio 28 angolo via Vallazze, 20131 Milano (MI)

2026 Tecnocasa Franchising S.p.A. - P. IVA 08365160152 - Via Monte Bianco 60/A 20089 Rozzano (MI). Ogni agenzia ha un proprio titolare ed è autonoma. Privacy policy | Policy utilizzo | Cookie policy