Monolocale in vendita

Milano, via porpora - Città Studi Teodosio
€ 130.000
1 locale 1 locale
34 Mq 34 Mq
1 bagno 1 bagno

Monolocale in vendita

Milano, via porpora - Città Studi Teodosio

Descrizione annuncio

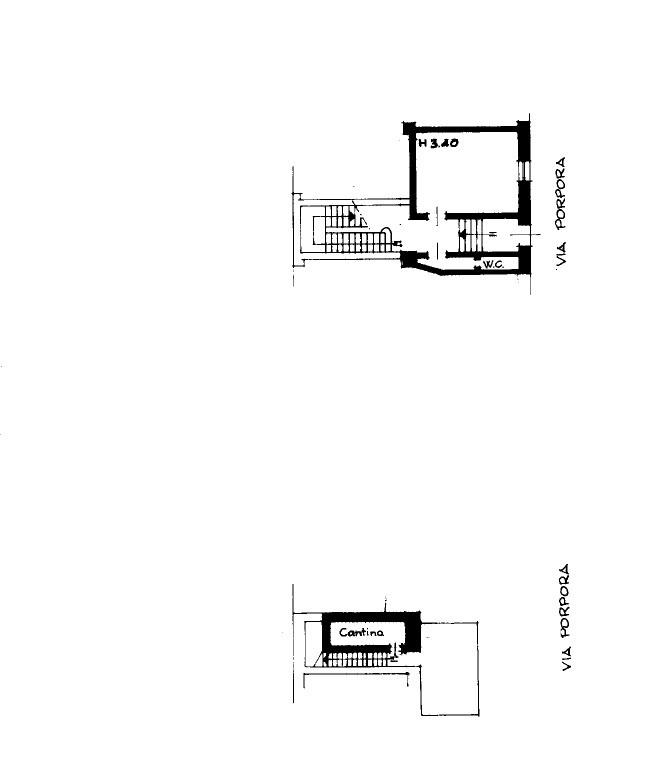
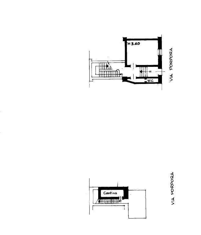
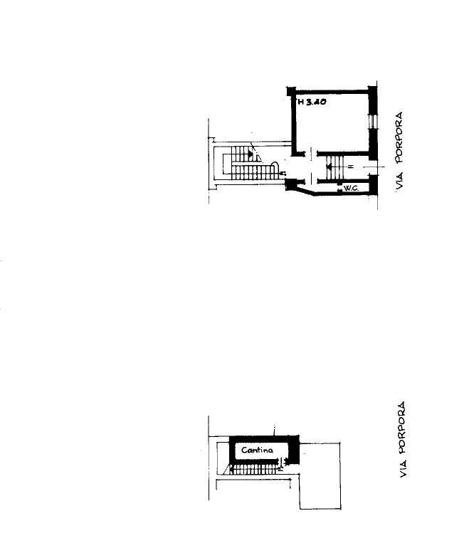
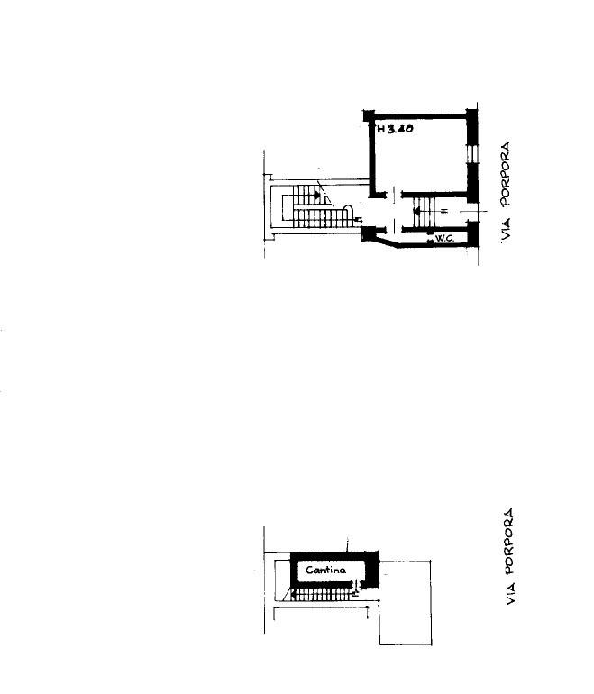
In zona Città Studi Teodosio , in un bel contesto stile d'epoca anni 30, recentemente ristrutturato, proponiamo ottimo monolocale da ristrutturare libero da subito .

L'immobile è così composto: ampio locale zona giorno/notte, separatamente locale servizio, e ampia cantina al piano interrato.

Ideale per investimento.

Per info o per fissare una visita , contattateci!

Mostra tutto

Nelle vicinanze

Trasporto pubblico Trasporto pubblico
Lambrate FS
Lambrate FS
390 m
Piola
Piola
650 m
stazione di Milano Lambrate
stazione di Milano Lambrate
550 m
stazione di Cimiano
stazione di Cimiano
1,8 Km
Stazione Lambrate M2
Stazione Lambrate M2
470 m
Ricariche auto elettriche Ricariche auto elettriche
U2 Supermercato Milano Vallazze | EnelX
240 m
A2A Pacini
420 m
A2A PoliMi
800 m
A2A Isola Digitale PoliMi
830 m
PoliMi - Dipartimento di Elettronica
850 m
Scuole Scuole
Politecnico di Milano, Campus Mancinelli
520 m
Scuola Monforte
550 m
IIS Santa Caterina da Siena
660 m
Scuole
730 m
Libera Scuola Rudolf Steiner
760 m
Farmacia Farmacia
Porpora
120 m
Lloyds Farmacia
220 m
Farmacia
360 m
Farmacia Lambrate
420 m
Farmacia Bramante
430 m
Ospedali Ospedali
Istituto Clinico Città Studi
400 m
Istituto Neurologico Carlo Besta
940 m
Istituto Nazionale dei Tumori
1,2 Km
San Raffaele - Turro
1,5 Km
Poliambulatorio di via Don Orione
1,8 Km
Supermercati Supermercati
Unes
120 m
Penny
160 m
U2 Supermercato
230 m
Pam
510 m
AffamatiUSA
530 m
Negozi Negozi
Negozi
70 m
Carrefour Express
140 m
Sisa
230 m
Danelli
240 m
Pane & Bontà
350 m
Bar Bar
Trendy
20 m
Albatros
50 m
Moscow Mule Bar
80 m
Bar
90 m
Twain
90 m
Ristoranti Ristoranti
Pizza House
80 m
Ciccio Pizza
100 m
Le Fontanelle
160 m
Mondipizza
170 m
Noodle house
190 m
Mostra tutto

Caratteristiche

Rif.:
61161811
Piano:
4 di 4 con ascensore (Piano rialzato)
Arredamento:
Assente
Condizionamento:
Assente
Ascensore:
Riscaldamento:
Centralizzato
Mostra tutto
Prezzo Prezzo
€ 130.000
Rata mutuo Rata mutuo
€ 603 / mese
Spese annue Spese annue
€ 1.000
Proponi il tuo prezzoProponi il tuo prezzo

Altre caratteristiche

Descrizione dei locali
Bagno Cieco

Classe Energetica

G
G
G
G
G
G
G
G
G
EP globale non rinnovabile:
127.50 kW h/m² anno
Anno di costruzione:
1935
Riscaldamento:
Centralizzato
Tipo impianto:
A radiatori
Tipo alimentazione:
Metano

Ti interessa visionare l'immobile?

Fissa un appuntamento  Fissa un appuntamento

Richiedi informazioni

Clicca su Leggi per aprire l'informativa
* Questi campi sono obbligatori

Calcola il tuo mutuo

Semplice e senza impegno
Anticipo

( % )
Mutuo

( % )

pochi semplici passi

inserisci i tuoi dati
Questionario completato
Grazie per aver richiesto un appuntamento senza impegno con un nostro Consulente del Credito e Assicurativo.

Hai inserito correttamente tutti i dati necessari e a breve riceverai una e-mail con un link da convalidare per inviare i tuoi dati.
Affiliato
M.p Case Srl
Via Desiderio 28 angolo via Vallazze, 20131 Milano (MI)

Il nostro staff


  • Claudio Mandaglio
    Affiliato

  • Maurizio Palumbo
    Affiliato
Via Desiderio 28 angolo via Vallazze, 20131 Milano (MI)
Zona: Lambrate
Mostra su mappa
Affiliato
M.p Case Srl
Via Desiderio 28 angolo via Vallazze, 20131 Milano (MI)

2026 Tecnocasa Franchising S.p.A. - P. IVA 08365160152 - Via Monte Bianco 60/A 20089 Rozzano (MI). Ogni agenzia ha un proprio titolare ed è autonoma. Privacy policy | Policy utilizzo | Cookie policy